WhatsApp
Powrot do listy

Niska cena Świetny układ Kameralna inwestycja

ul. Kozienicka, Dębniki, Kraków

455 000 zl
Metraz Metraz 37.50 m2
Pokoje Pokoje 3
Cena za m2 Cena / m2 12 133 zl
Rok budowy Rok budowy 2027

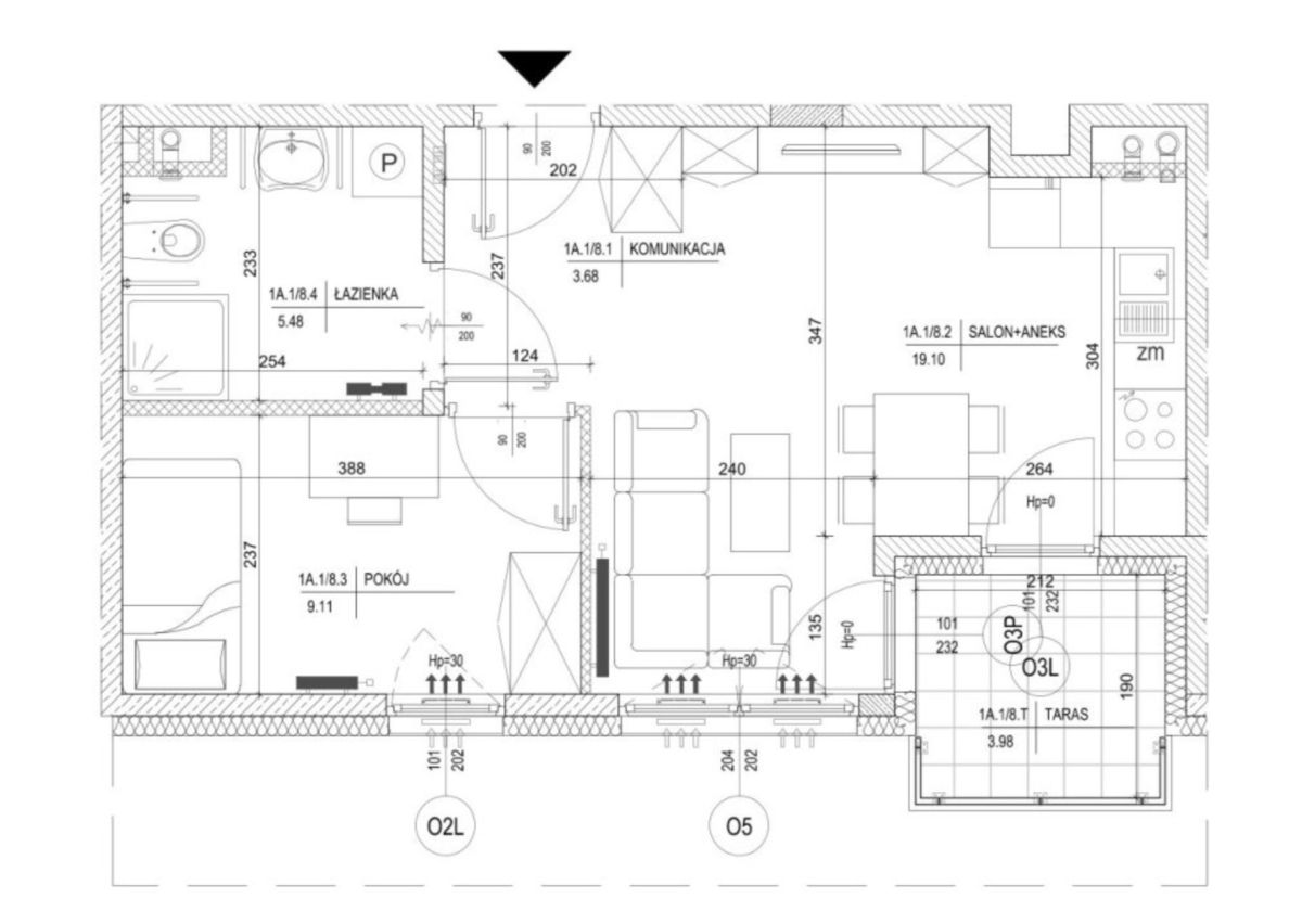
Opis oferty

Nowoczesne, funkcjonalne mieszkanie 2-pokojowe w zielonej części Krakowa - idealne dla osób, które chcą połączyć komfort życia z dobrą komunikacją z miastem.

Lokal o przemyślanym układzie oferuje jasny salon z aneksem kuchennym i wyjściem na balkon, ustawną sypialnię oraz łazienkę.
Przestrzeń została zaprojektowana tak, aby zapewnić maksymalną wygodę codziennego użytkowania, a stan deweloperski daje możliwość wykończenia wnętrza dokładnie według własnej wizji i stylu.

Inwestycja ma kameralny charakter - to niski, dwupiętrowy budynek z windą oraz podziemną halą garażową.
Każde mieszkanie posiada balkon, a wokół znajdują się zielone alejki i tereny sprzyjające spacerom oraz rekreacji. Istnieje możliwość zakupu miejsca postojowego w garażu podziemnym.

Okolica jest spokojna i pełna zieleni, a jednocześnie dobrze skomunikowana z resztą miasta. W pobliżu znajduje się przystanek autobusowy (ok. 500 m), szybki dojazd do obwodnicy Krakowa i autostrady A4, sklepy, punkty usługowe, przedszkola oraz tereny spacerowe i ścieżki rowerowe.

Cena mieszkania: 455 000 zł
Kupujący nie płaci prowizji. Zapewniam pełne wsparcie na każdym etapie zakupu, również w zakresie finansowania.

Zapraszam do kontaktu i umówienia prezentacji na terenie inwestycji lubw. biurze sprzedaży.
Klaudiusz Gumulak
531 807 720

Powyższa oferta ma charakter informacyjny i nie stanowi oferty handlowej w rozumieniu art. 66 §1 Kodeksu cywilnego.
Zdjęcia przedstawiają wizualizacje przykładowej aranżacji wnętrza.