Powrot do listy
Metraz
143.00 m2
Pokoje
5
Cena / m2
8 944 zl
Rok budowy
2026
OKAZJA IDEALNA DLA RODZINY 2 takiej oferty w Krakowie nie ma i nie będzie Poniżej 10 000zł/m2
Zadzwoń i umów się na spotkanie Spiesz się zanim dom kupi ktoś inny
Grzegorz Drabczyk +48 572 422 483
1. Układ mieszkania:
Parter:
- Salon z aneksem kuchennym, Toaleta, Spiżarnia, Wiatrołap oraz Garaż
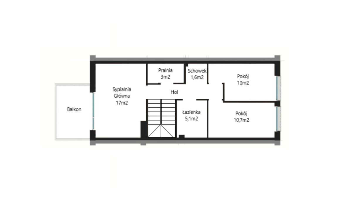
Piętro:
- Głowna sypialnia, 2 dodatkowe sypialnie, Łazienka, Pralnia, Garderoba
Poddasze:
- Przestrzeń na dodatkowy pokój lub biuro
2. Świetna lokalizacja i komunikacja:
- 3 minut spacerem do przystanku autobusowego Podwierzbie, z którego odjeżdżają liczne linie zapewniające łatwy dojazd do centrum Krakowa i innych dzielnic.
- Doskonałe połączenie z trasą S7, która zapewnia szybki wyjazd na obwodnicę autostradową, ułatwiając dojazd do innych części miasta oraz poza Kraków.
- Do centrum miasta dotrzesz w około 15 minut samochodem, a komunikacją miejską w nieco ponad 20 minut, co czyni tę lokalizację idealną dla osób pracujących w śródmieściu, ale szukających spokojnego miejsca do życia
3. Infrastruktura - wszystko, czego potrzebujesz w zasięgu ręki:
- W pobliżu znajdziesz liczne sklepy, takie jak Lidl, Biedronka oraz Żabka, które spełnią wszystkie codzienne potrzeby zakupowe
- W bliskiej okolicy znajdują się szkoły i przedszkola, co czyni tę lokalizację idealną dla rodzin z dziećmi
- Mnóstwo terenów zielonych, które zachęcają do spacerów i aktywnego wypoczynku na świeżym powietrzu
- W zaledwie 7 minut samochodem dotrzesz do Zalewu Bagry, który oferuje plaże i rekreacyjne atrakcje, idealne na weekendowy wypoczynek
4. DLACZEGO WARTO ZE MNĄ WSPÓŁPRACOWAĆ?
- Ze mną oszczędzisz czas i pieniądze Uzyskasz największy możliwy rabat u dewelopera
- Pomogę Ci przebrnąć przez cały proces zakupu lub sprzedaży od A do Z, od wyboru mieszkania aż po finansowanie i odbiór lokalu
- Na rynku pierwotnym nie pobieram prowizji od kupującego
- Posiadam dostęp do dużej bazy ofert nieruchomości na terenie Krakowa i okolic
5. KOSZTY:
- Cena: 1 279 000 zł - Takiej ceny w Krakowie już nie znajdziesz
- Możliwość zakupu miejsca postojowego
- Kupujący nie płaci PCC 2% ani prowizji dla biura - to oszczędność kilkudziestu tysięcy złotych
Zadzwoń teraz Umów się na prezentację zanim ktoś Cię uprzedzi
Grzegorz Drabczyk - +48 572 422 483
*Zdjęcia w ogłoszeniu to wizualizacje, tak może wyglądać mieszkanie po wykończeniu
Zielona, spokojna okolica Poniżej 10 000zł/m2
ul. Feliksa Wrobela, Rybitwy, Kraków
1 279 000 zl
Opis oferty
OKAZJA IDEALNA DLA RODZINY 2 takiej oferty w Krakowie nie ma i nie będzie Poniżej 10 000zł/m2
Zadzwoń i umów się na spotkanie Spiesz się zanim dom kupi ktoś inny
Grzegorz Drabczyk +48 572 422 483
1. Układ mieszkania:
Parter:
- Salon z aneksem kuchennym, Toaleta, Spiżarnia, Wiatrołap oraz Garaż
Piętro:
- Głowna sypialnia, 2 dodatkowe sypialnie, Łazienka, Pralnia, Garderoba
Poddasze:
- Przestrzeń na dodatkowy pokój lub biuro
2. Świetna lokalizacja i komunikacja:
- 3 minut spacerem do przystanku autobusowego Podwierzbie, z którego odjeżdżają liczne linie zapewniające łatwy dojazd do centrum Krakowa i innych dzielnic.
- Doskonałe połączenie z trasą S7, która zapewnia szybki wyjazd na obwodnicę autostradową, ułatwiając dojazd do innych części miasta oraz poza Kraków.
- Do centrum miasta dotrzesz w około 15 minut samochodem, a komunikacją miejską w nieco ponad 20 minut, co czyni tę lokalizację idealną dla osób pracujących w śródmieściu, ale szukających spokojnego miejsca do życia
3. Infrastruktura - wszystko, czego potrzebujesz w zasięgu ręki:
- W pobliżu znajdziesz liczne sklepy, takie jak Lidl, Biedronka oraz Żabka, które spełnią wszystkie codzienne potrzeby zakupowe
- W bliskiej okolicy znajdują się szkoły i przedszkola, co czyni tę lokalizację idealną dla rodzin z dziećmi
- Mnóstwo terenów zielonych, które zachęcają do spacerów i aktywnego wypoczynku na świeżym powietrzu
- W zaledwie 7 minut samochodem dotrzesz do Zalewu Bagry, który oferuje plaże i rekreacyjne atrakcje, idealne na weekendowy wypoczynek
4. DLACZEGO WARTO ZE MNĄ WSPÓŁPRACOWAĆ?
- Ze mną oszczędzisz czas i pieniądze Uzyskasz największy możliwy rabat u dewelopera
- Pomogę Ci przebrnąć przez cały proces zakupu lub sprzedaży od A do Z, od wyboru mieszkania aż po finansowanie i odbiór lokalu
- Na rynku pierwotnym nie pobieram prowizji od kupującego
- Posiadam dostęp do dużej bazy ofert nieruchomości na terenie Krakowa i okolic
5. KOSZTY:
- Cena: 1 279 000 zł - Takiej ceny w Krakowie już nie znajdziesz
- Możliwość zakupu miejsca postojowego
- Kupujący nie płaci PCC 2% ani prowizji dla biura - to oszczędność kilkudziestu tysięcy złotych
Zadzwoń teraz Umów się na prezentację zanim ktoś Cię uprzedzi
Grzegorz Drabczyk - +48 572 422 483
*Zdjęcia w ogłoszeniu to wizualizacje, tak może wyglądać mieszkanie po wykończeniu